萧山区农村住宅设计通用图集(2019版)由区住建局于2025年3月在萧山区政府网更新发布。
由于平时不少网友都在问“小编有没有自建房图纸”,故再次发布,有需要的朋友可收藏备用。
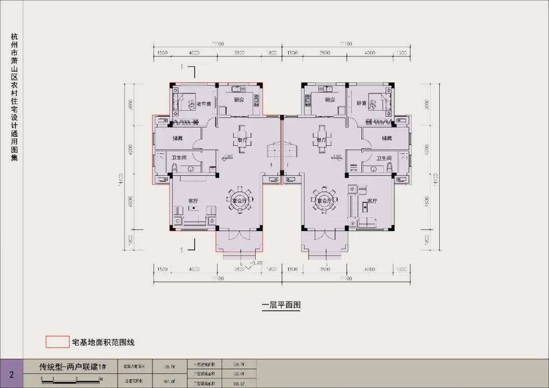
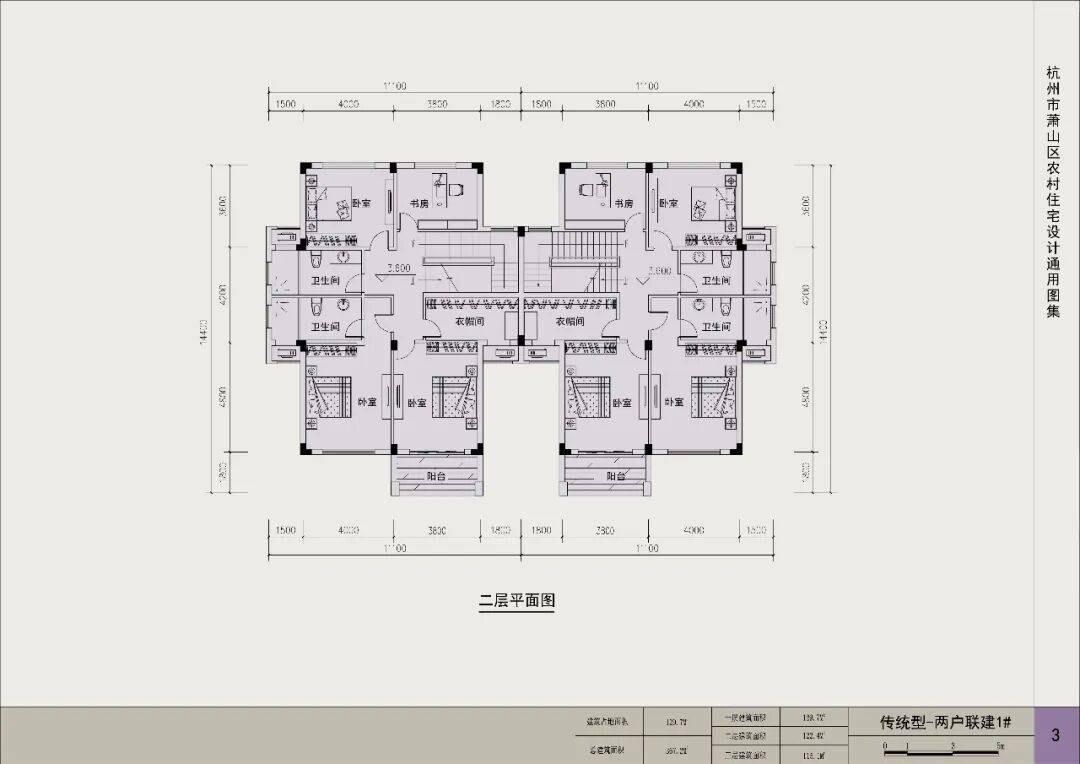
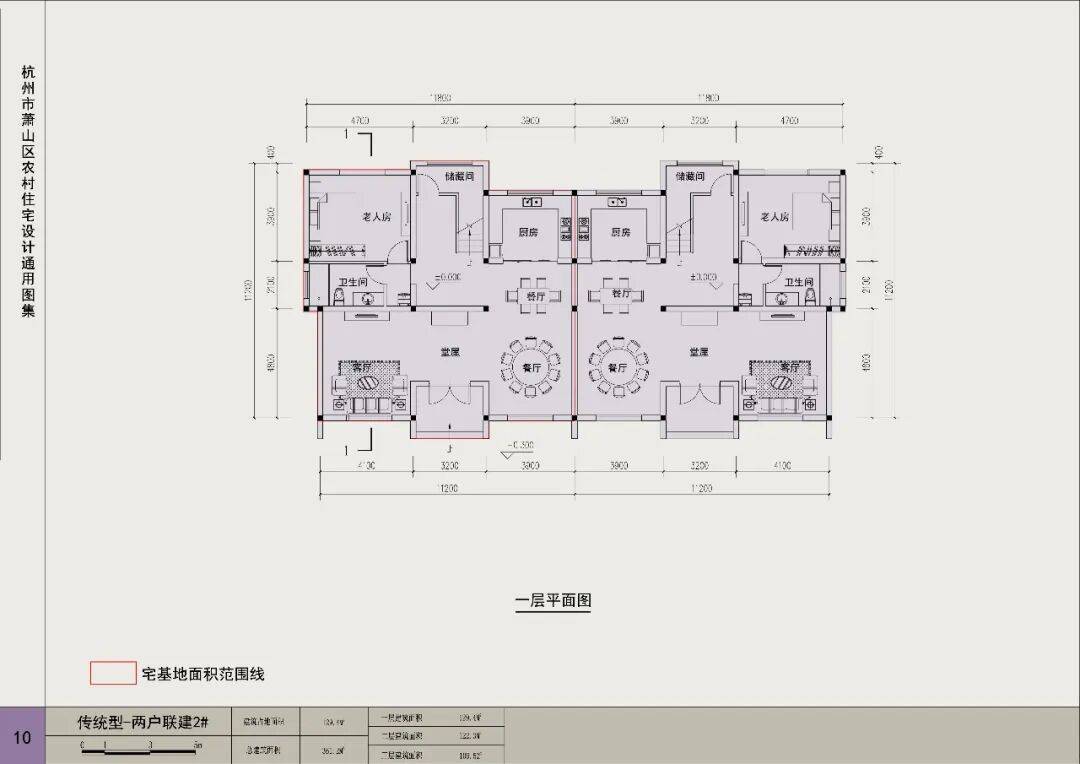
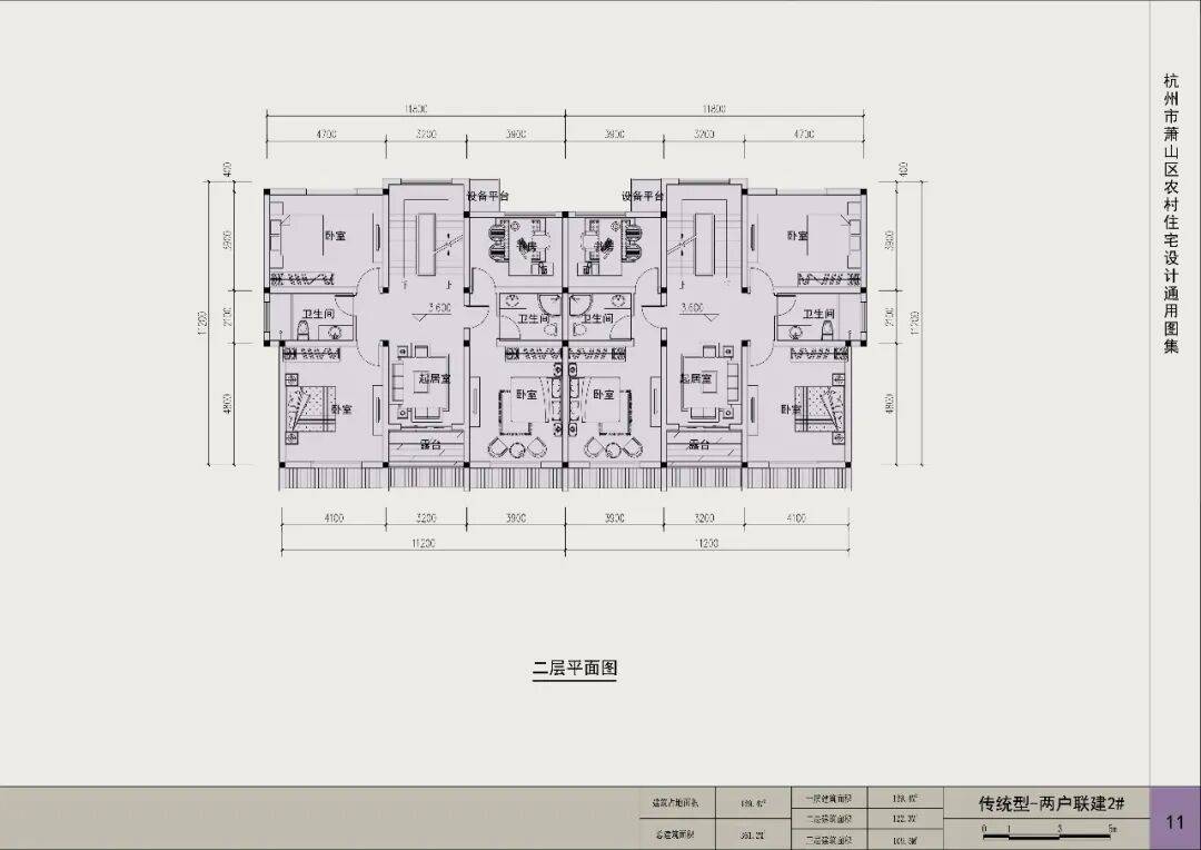
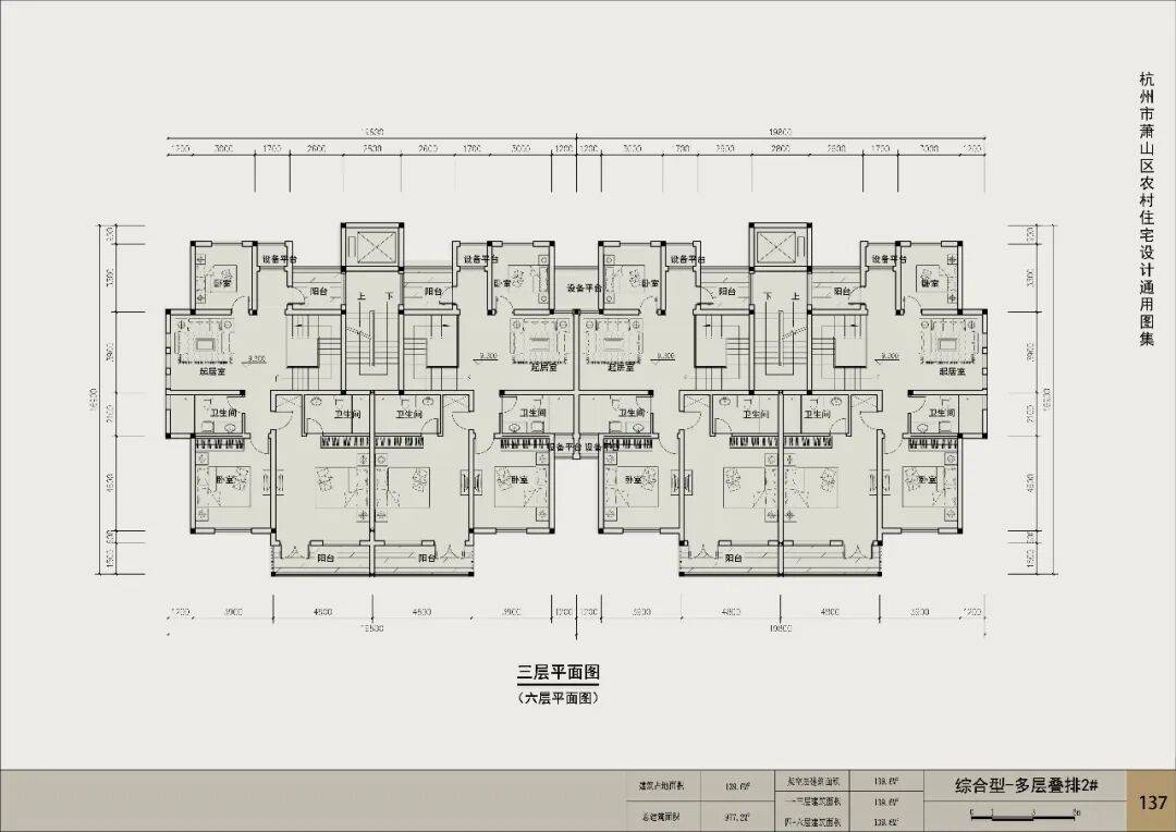
萧山区农村住宅设计通用图集主要面向农村自建住宅,涵盖了多种户型与设计方案,适合准备建房、翻建、或者提前了解政策和设计规范的家庭参考。

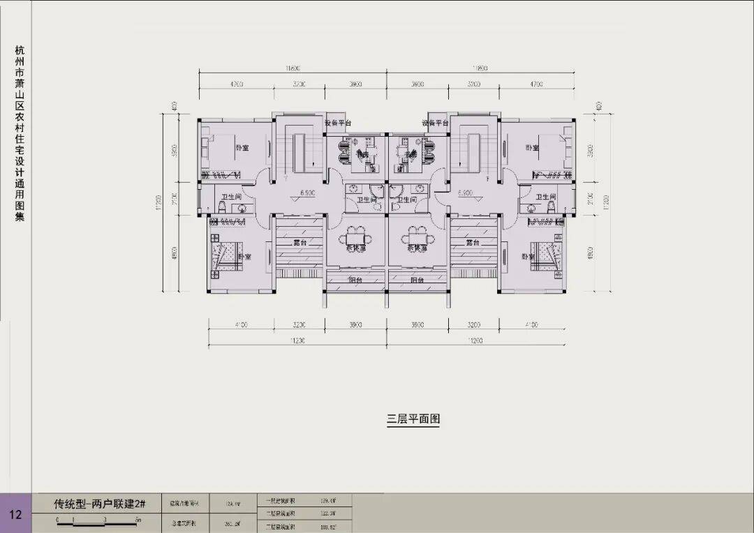
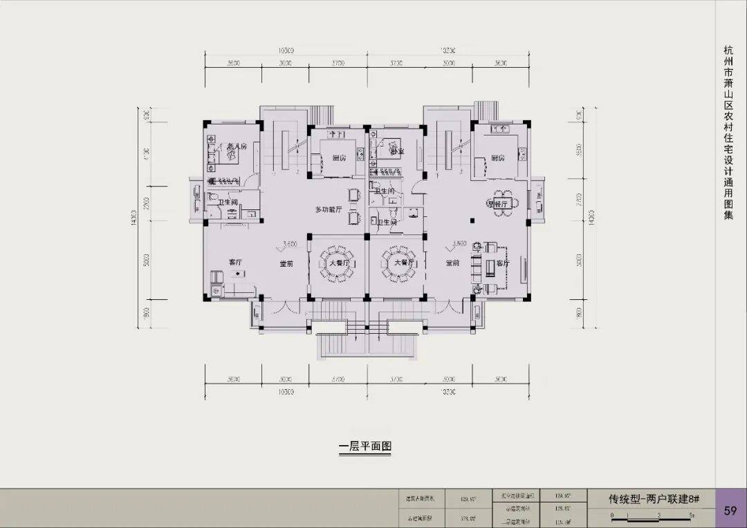
传统型1(两户联建1-5)








































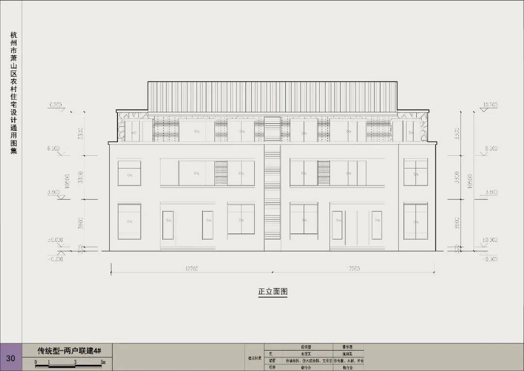
传统型1(两户联建6-9)
































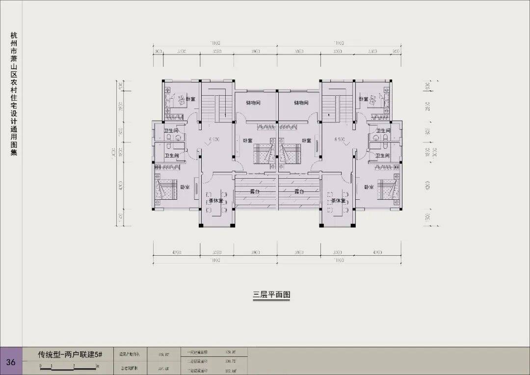
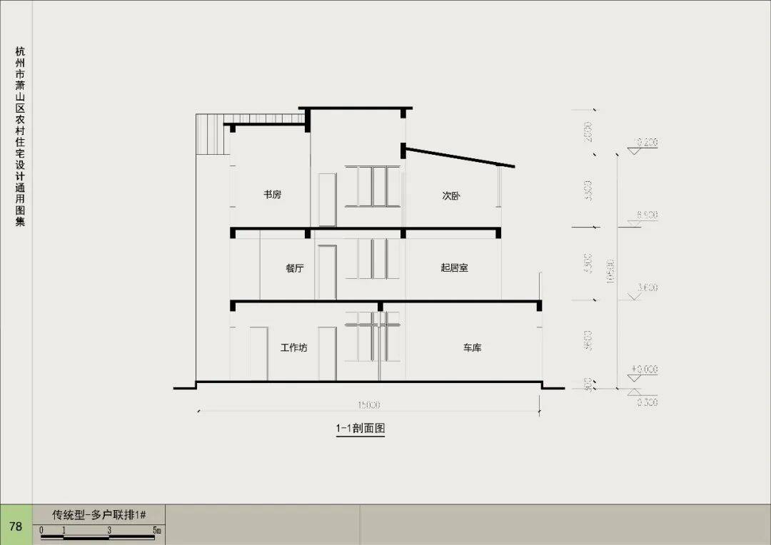
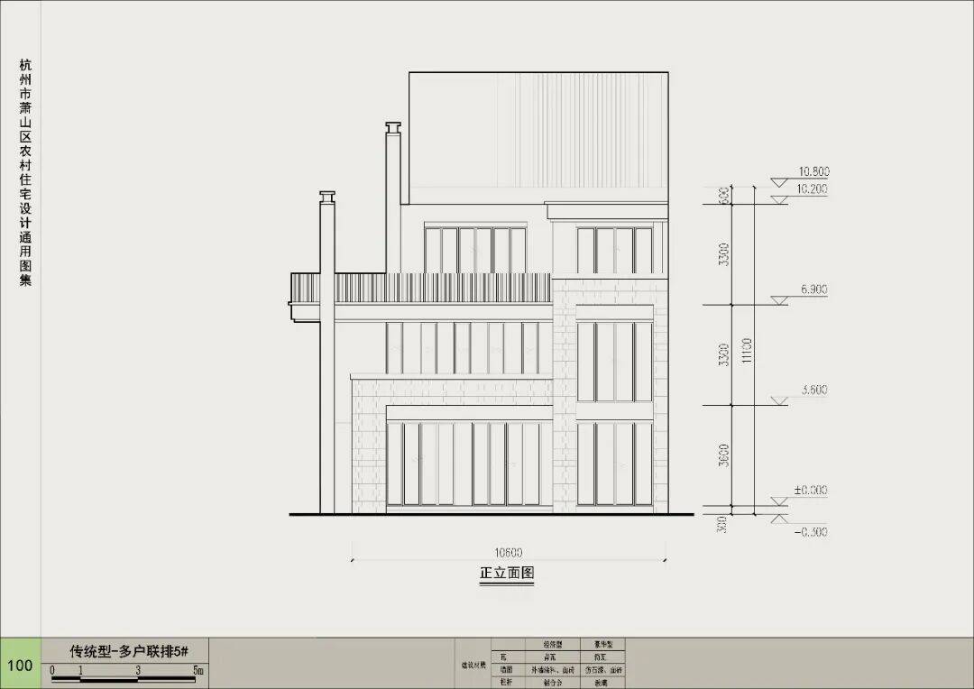
传统型2(多户联排)
















































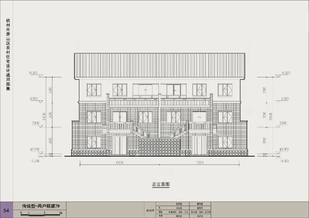
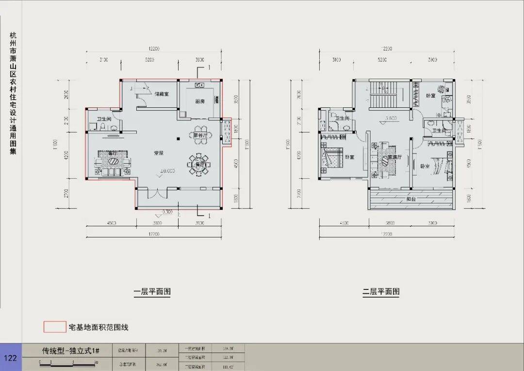
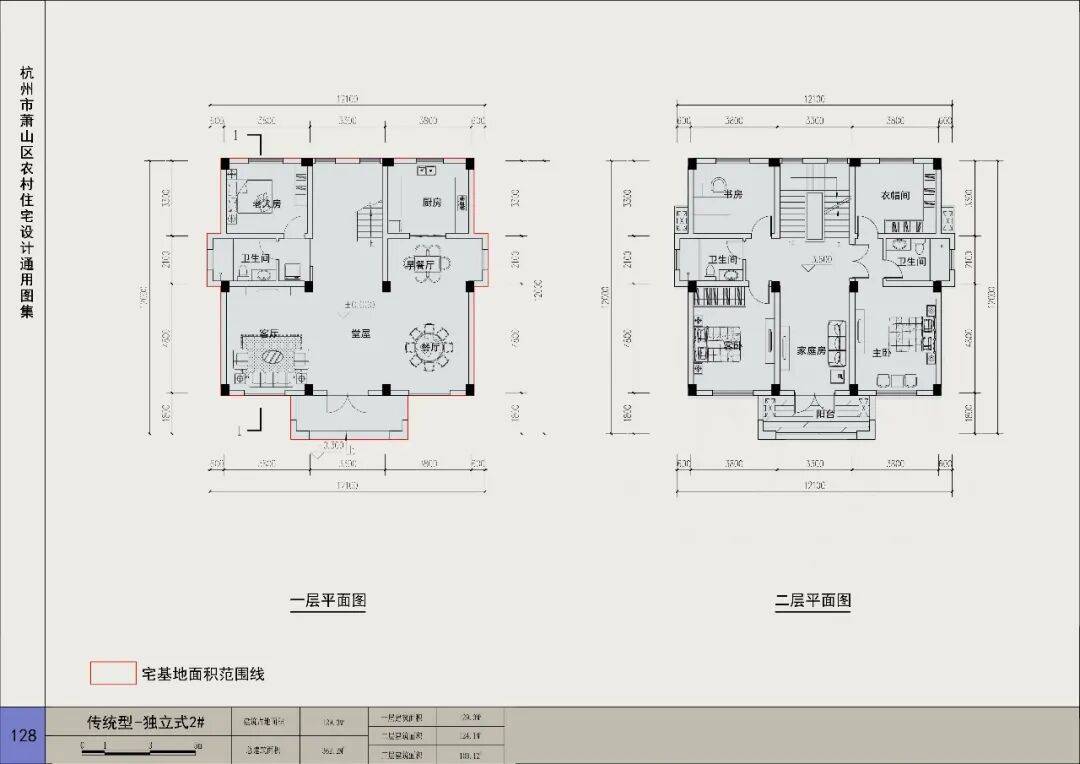
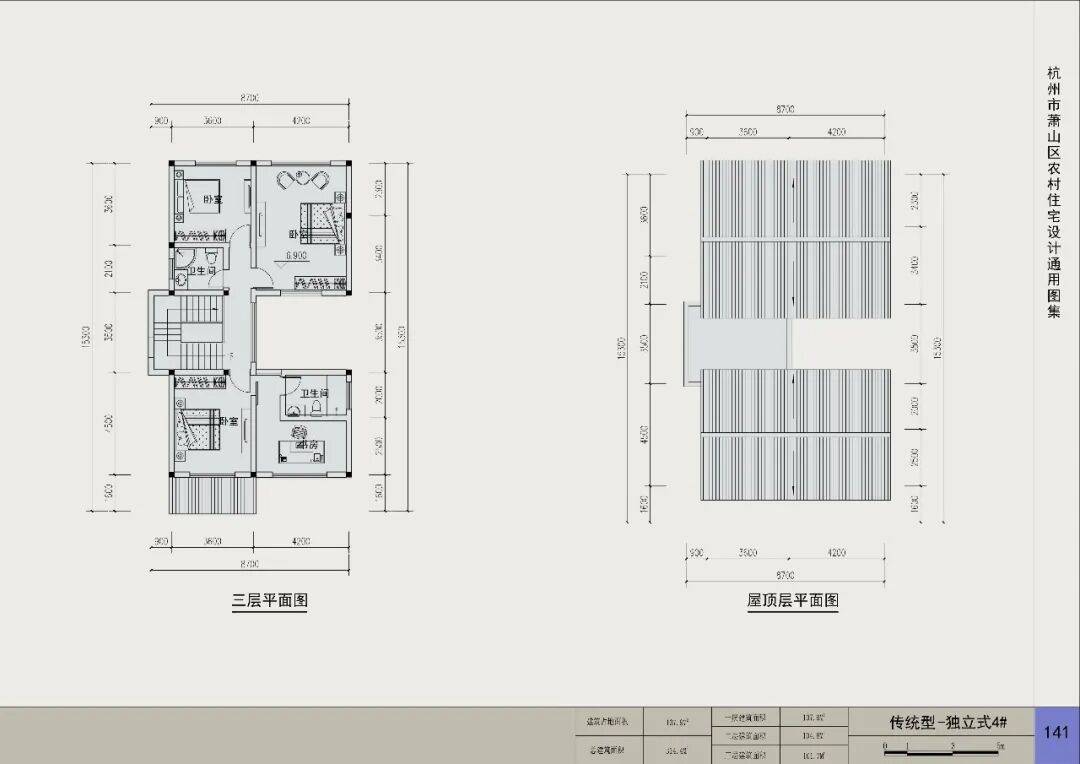
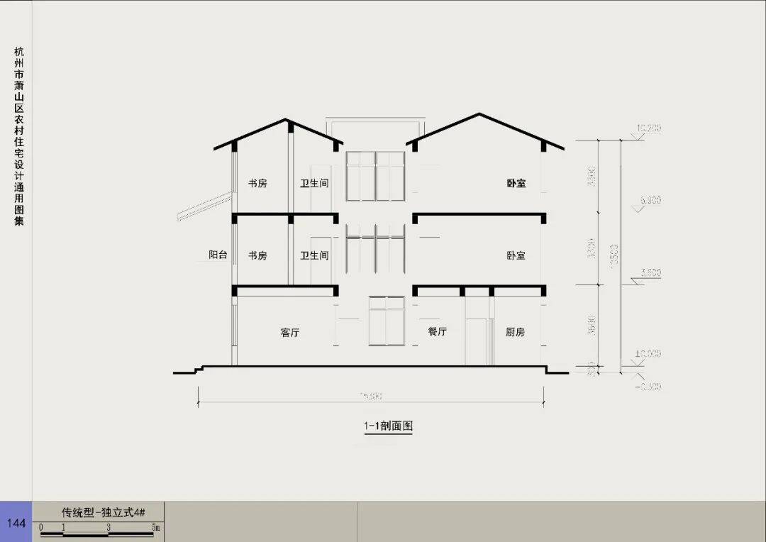
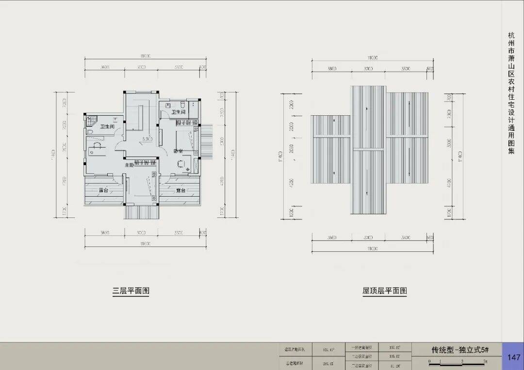
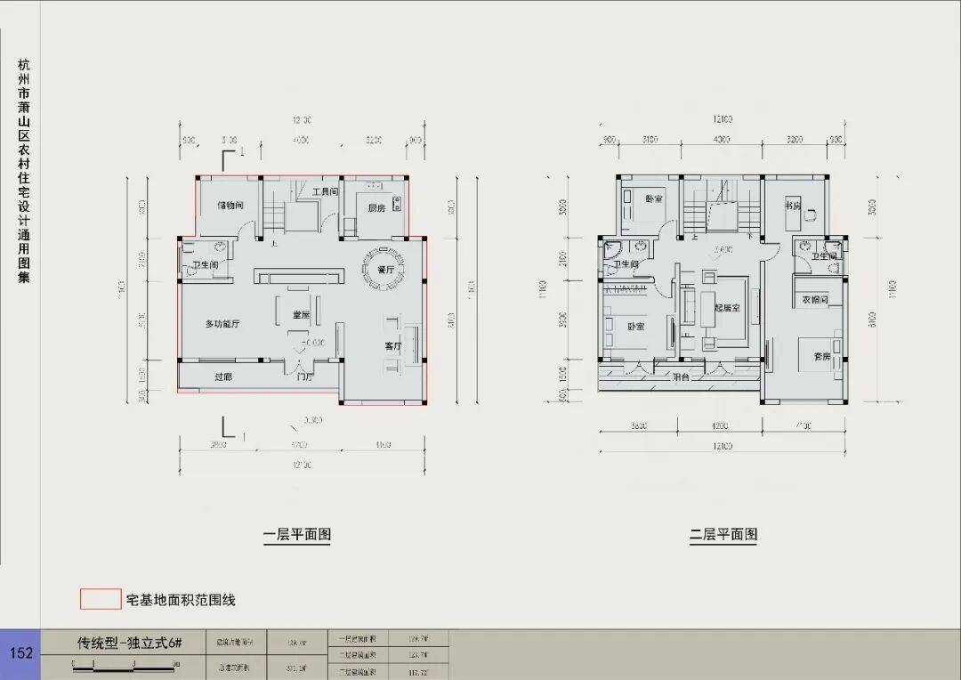
传统型3(独立式)




































传统型4(多层叠排)
















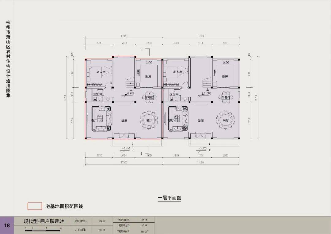
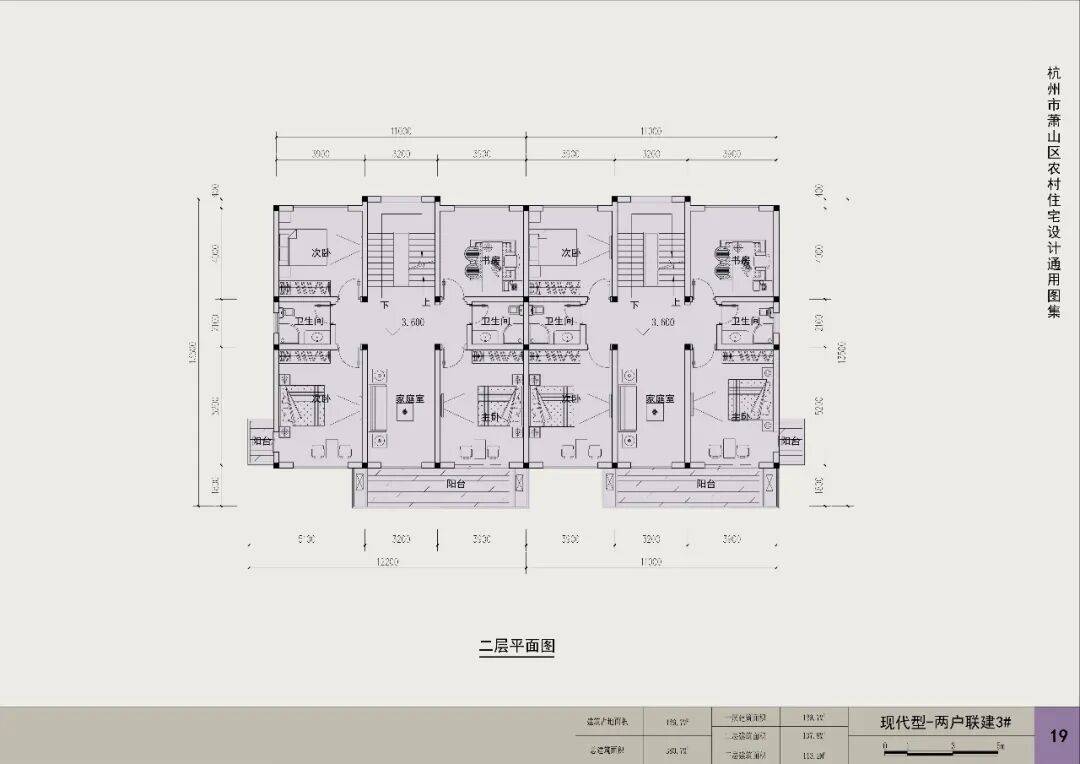
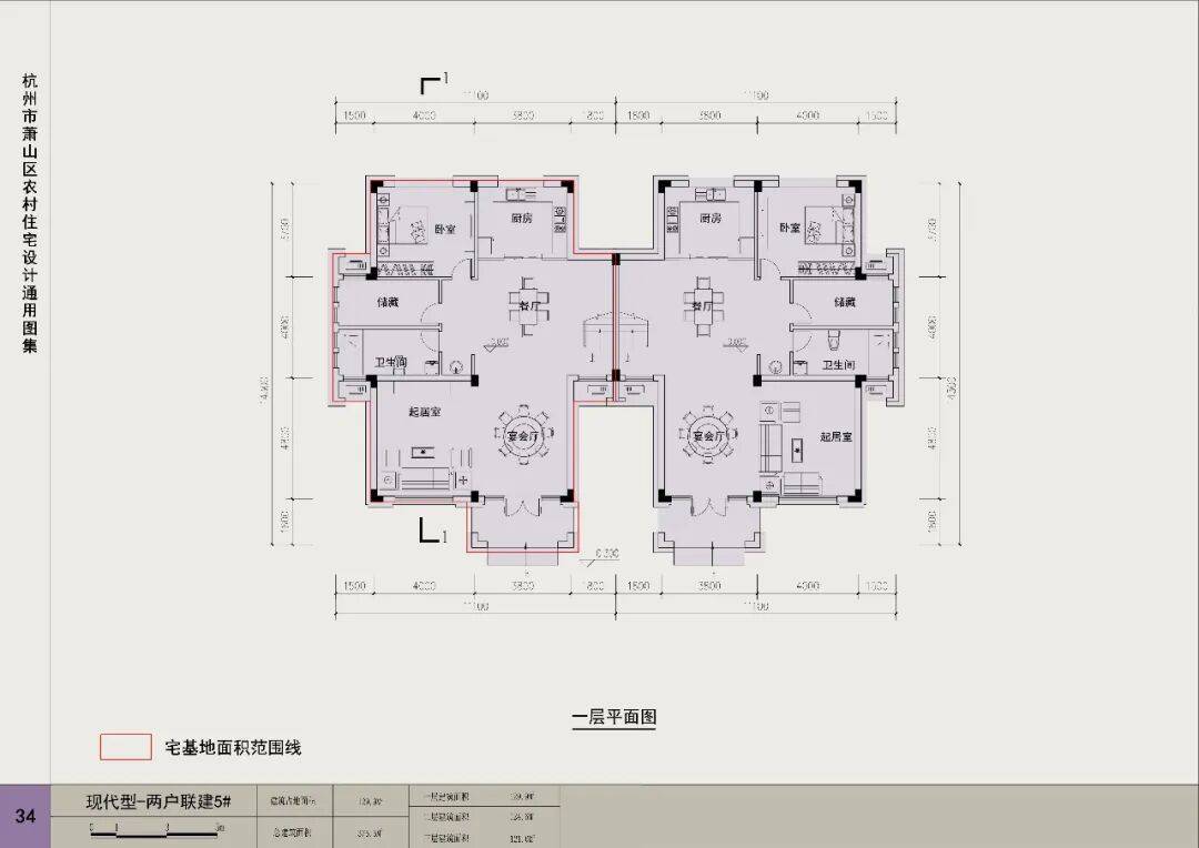
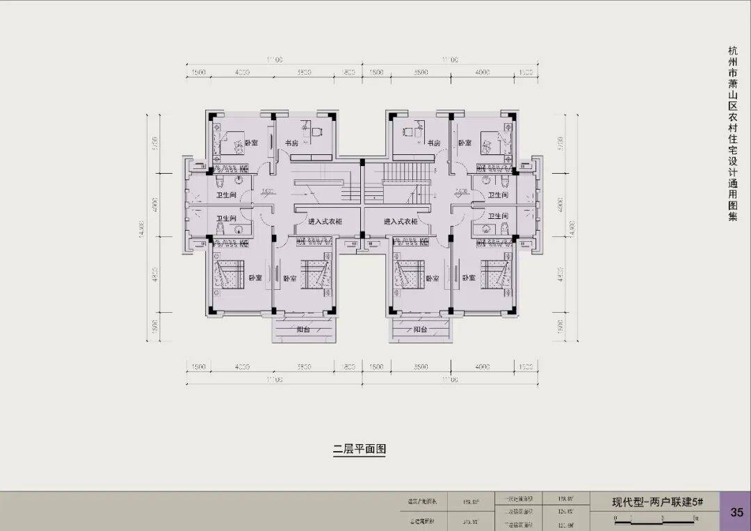
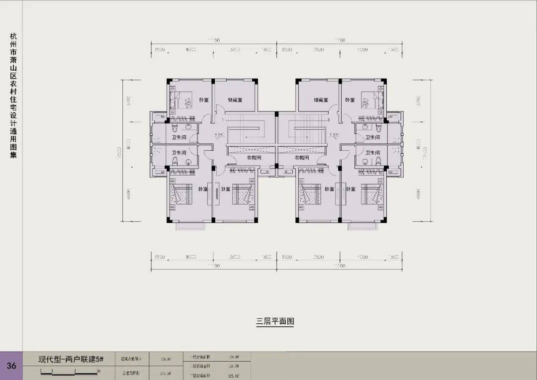
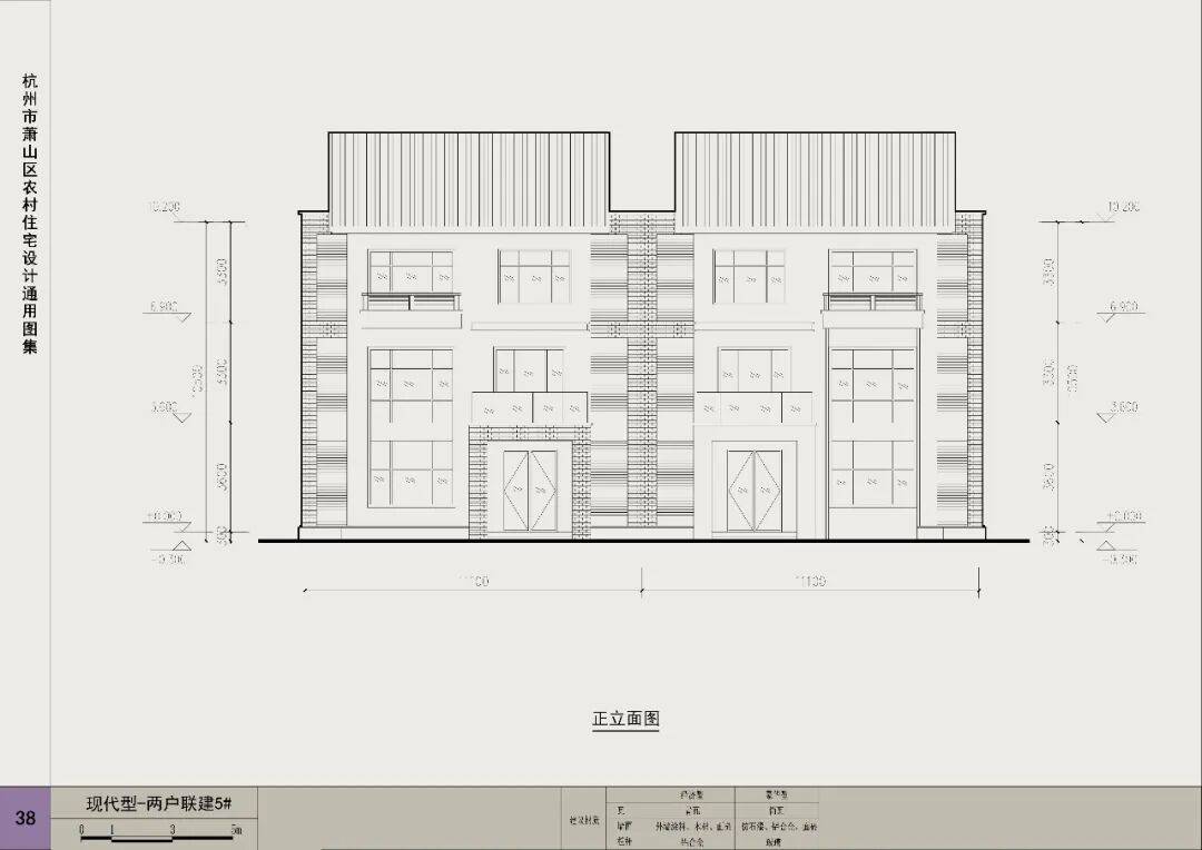
现代型1(两户联建1-5)








































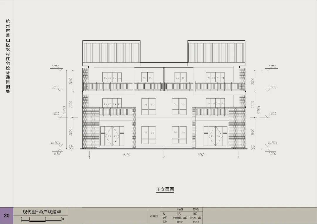
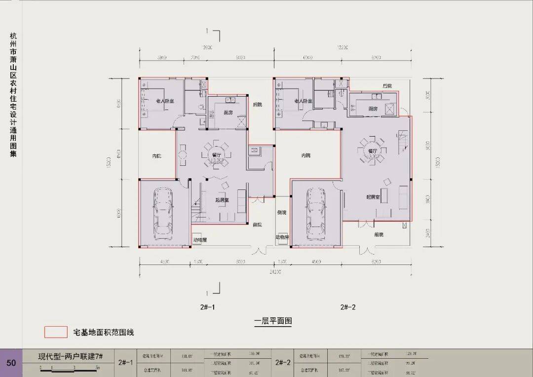
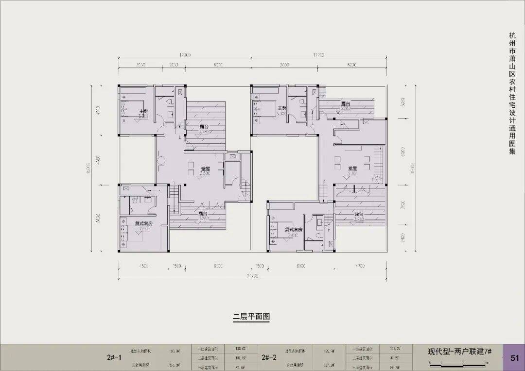
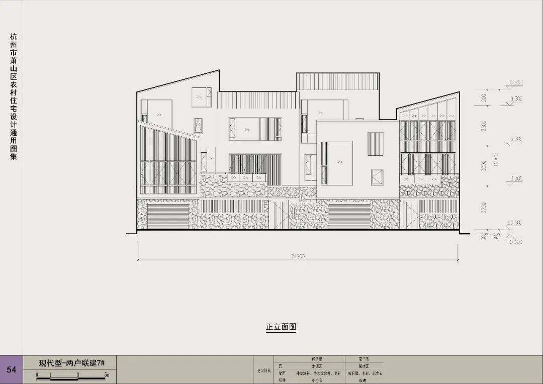
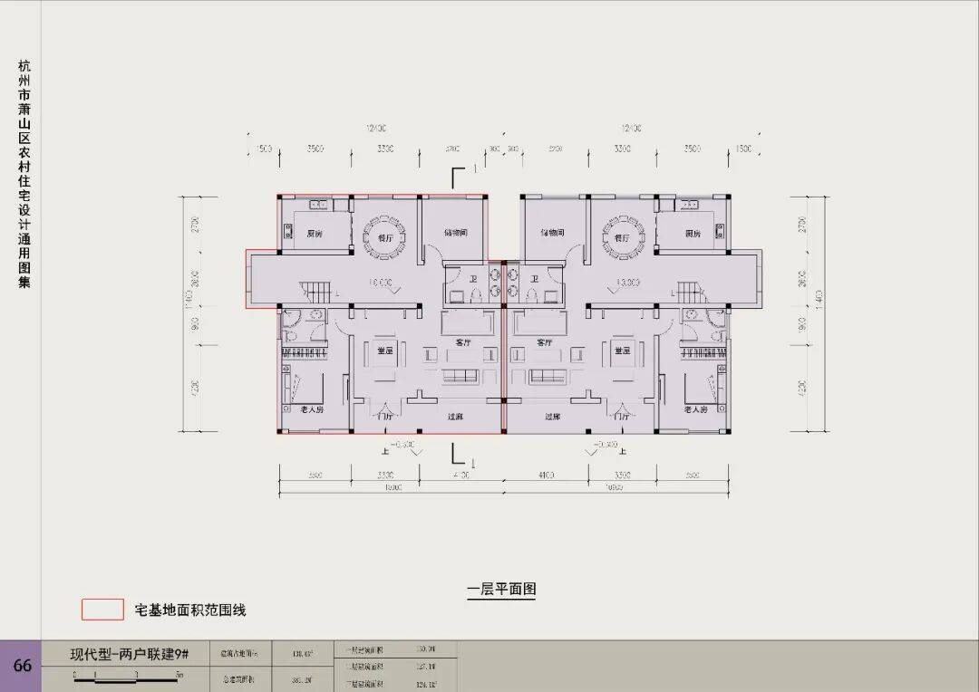
现代型1(两户联建6-9)
































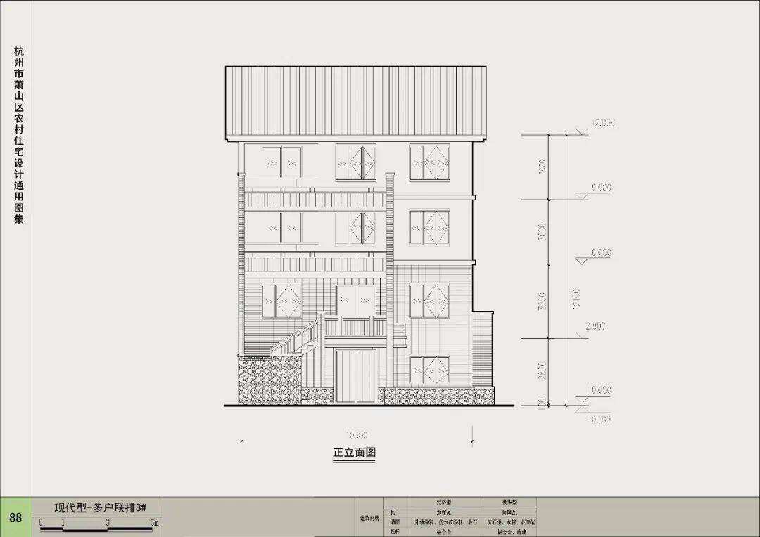
现代型2(多户联排)










































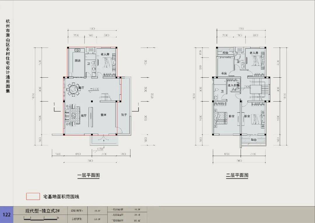
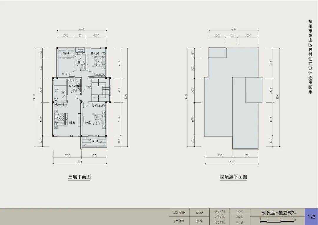
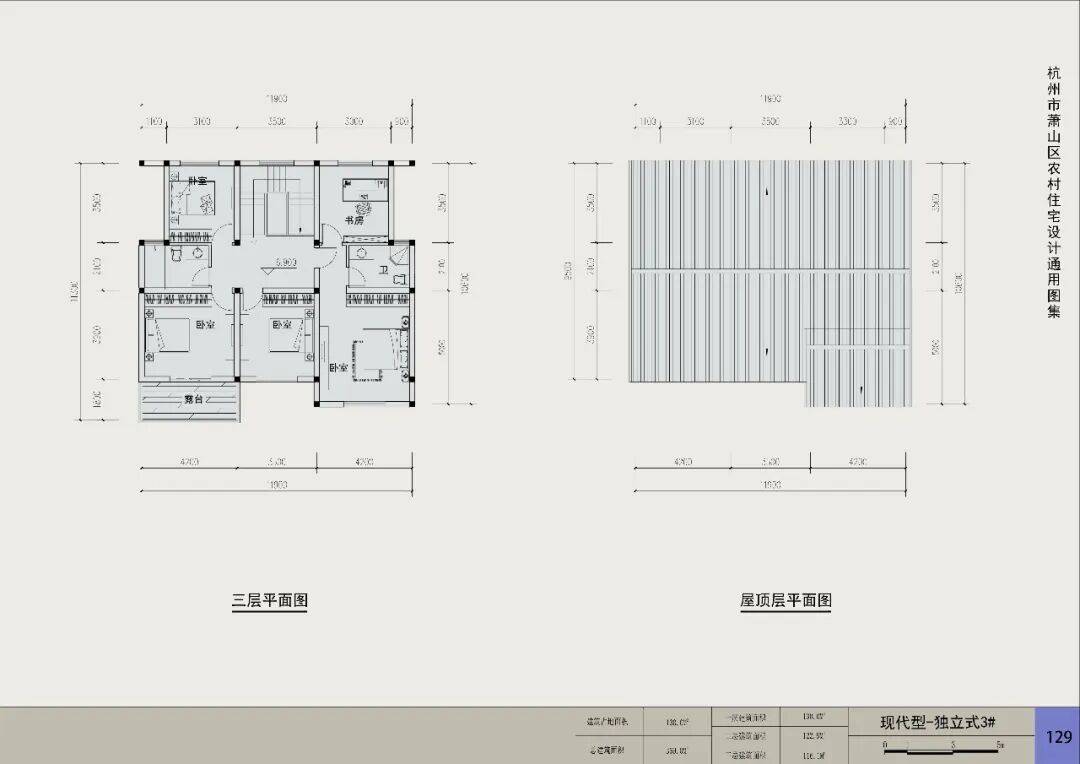
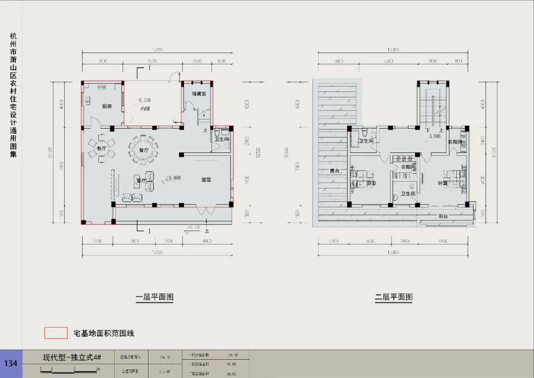
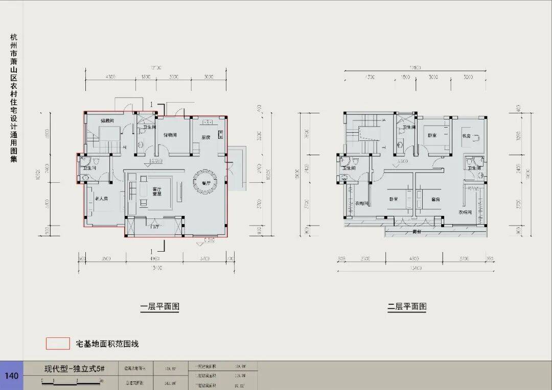
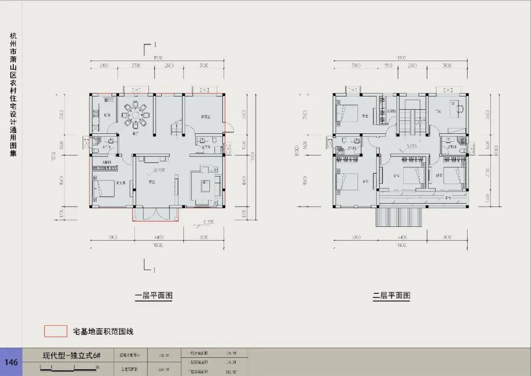
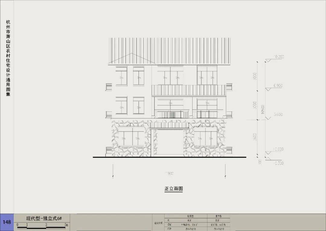
现代型3(独立式)




































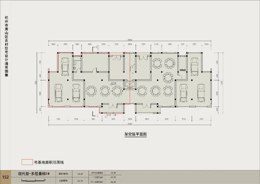
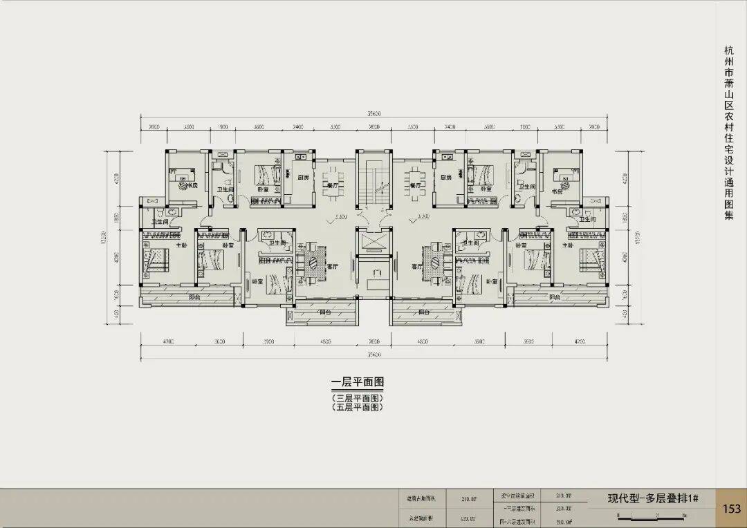
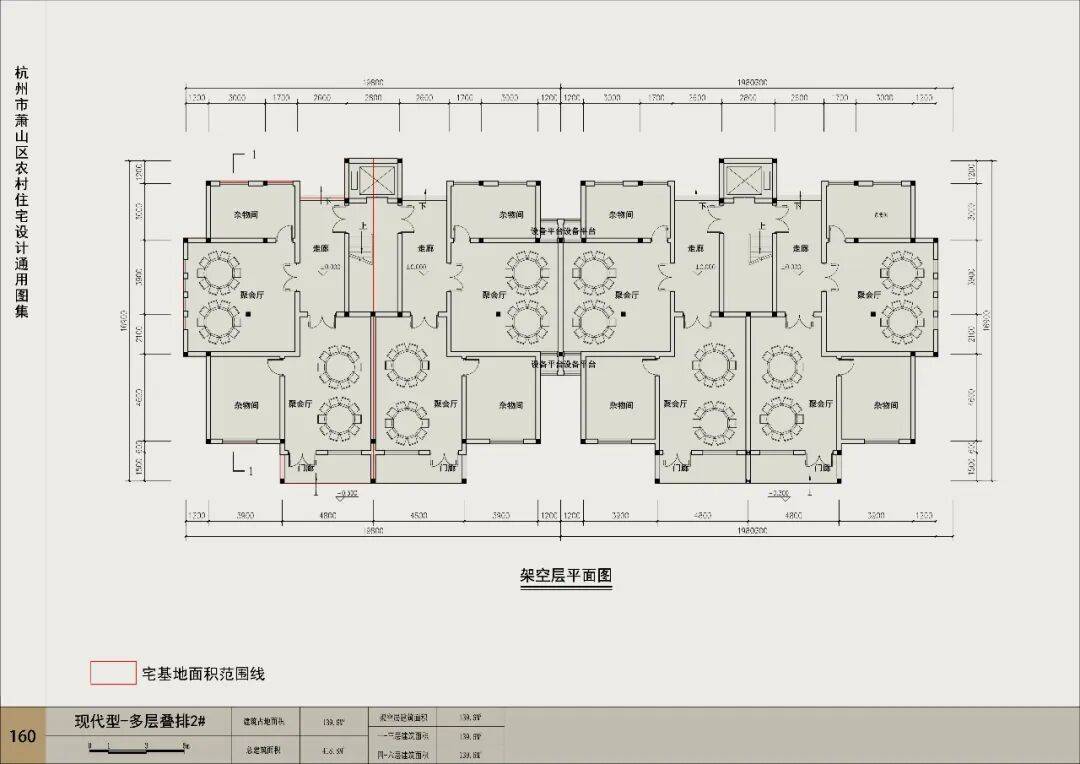
现代型4(多层叠排)
















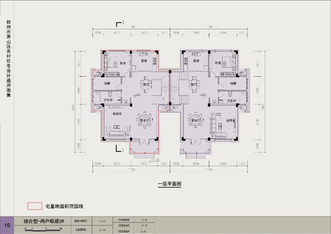
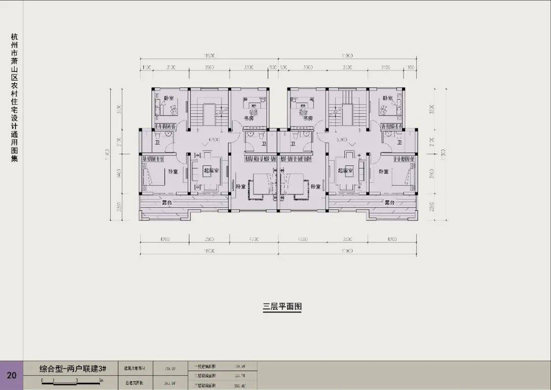
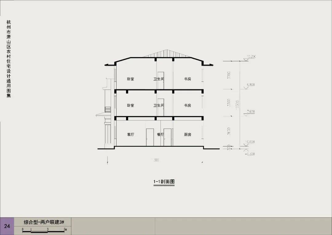
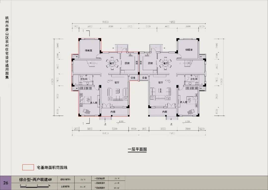
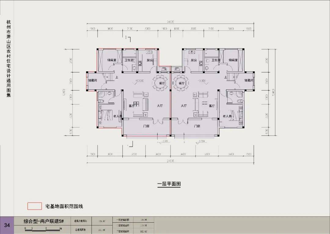
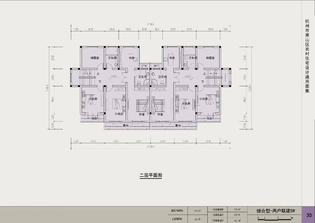
综合型1(两户联建)








































综合型2(多户联排)




































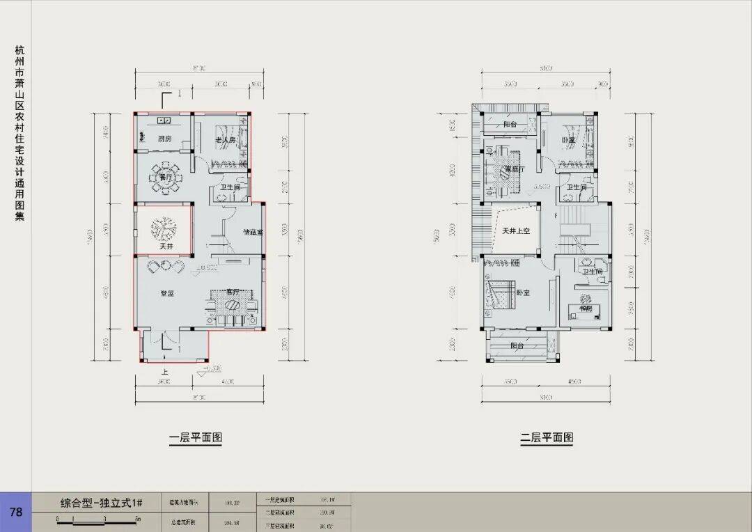
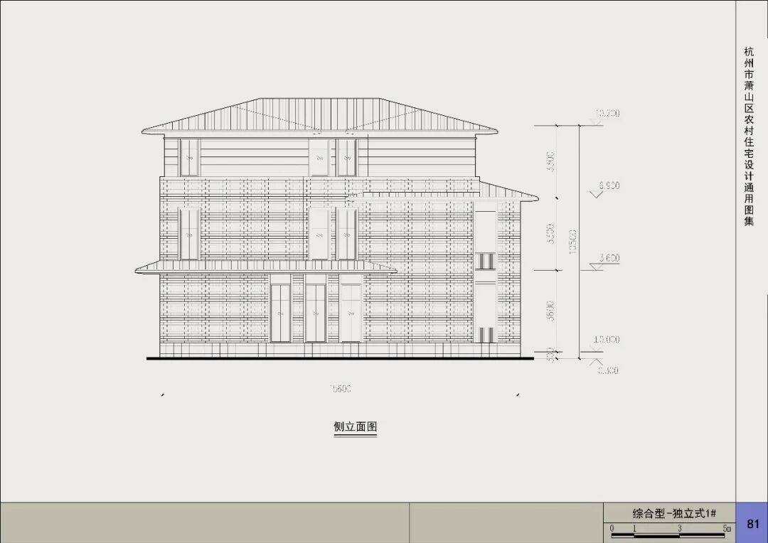
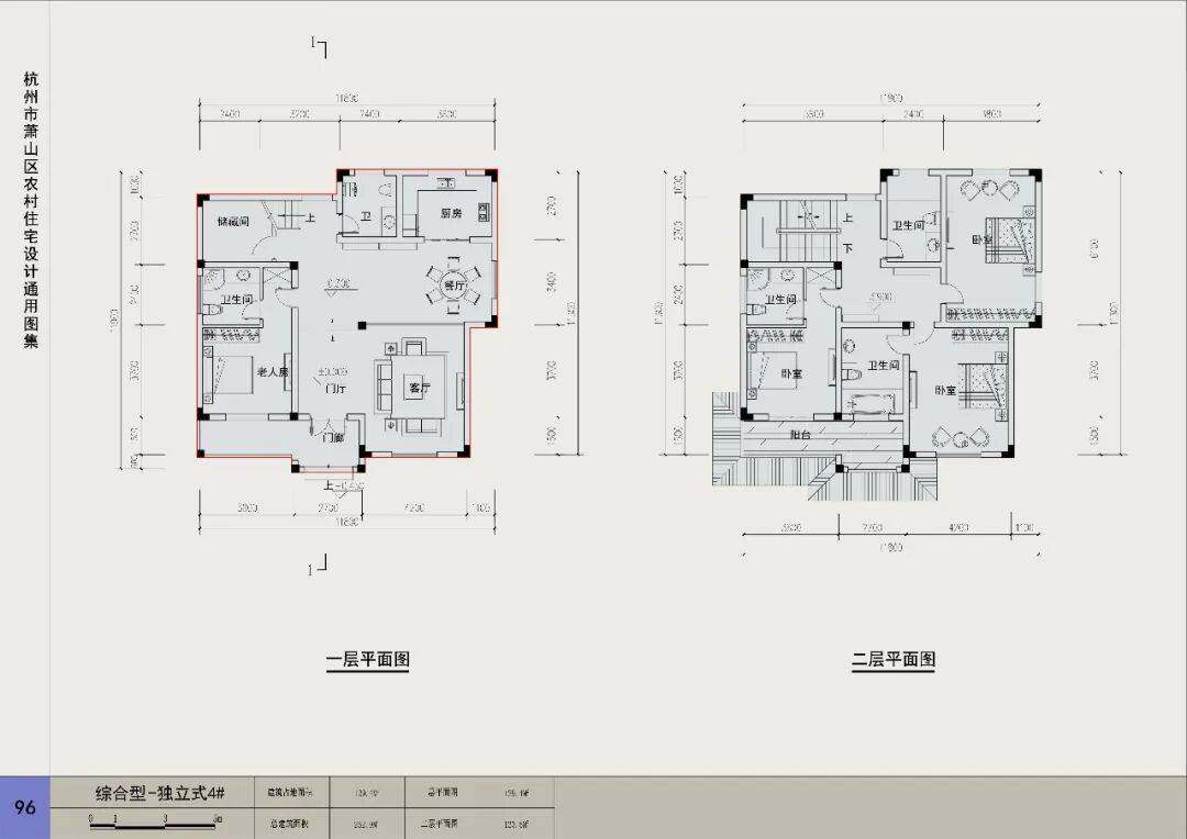
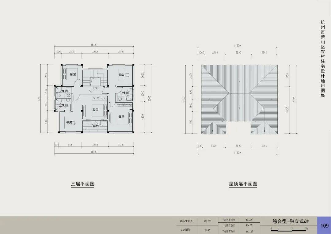
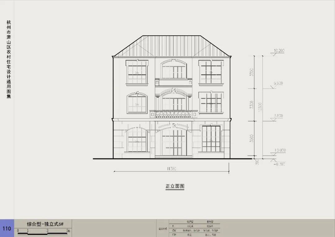
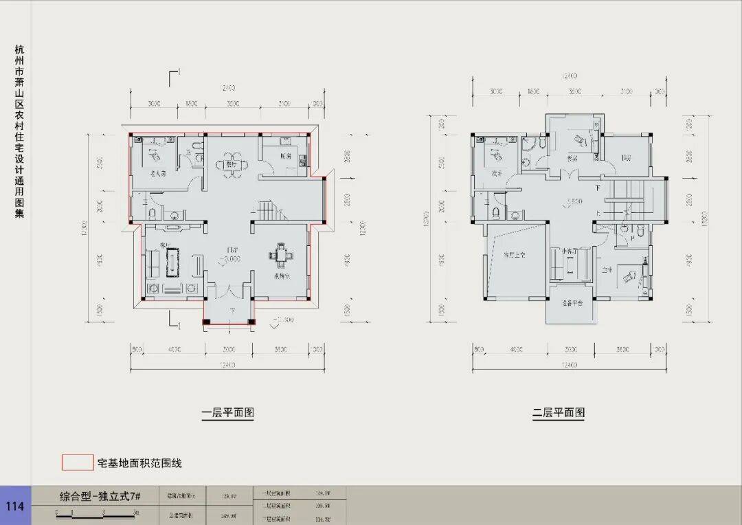
综合型3(独立式)
















































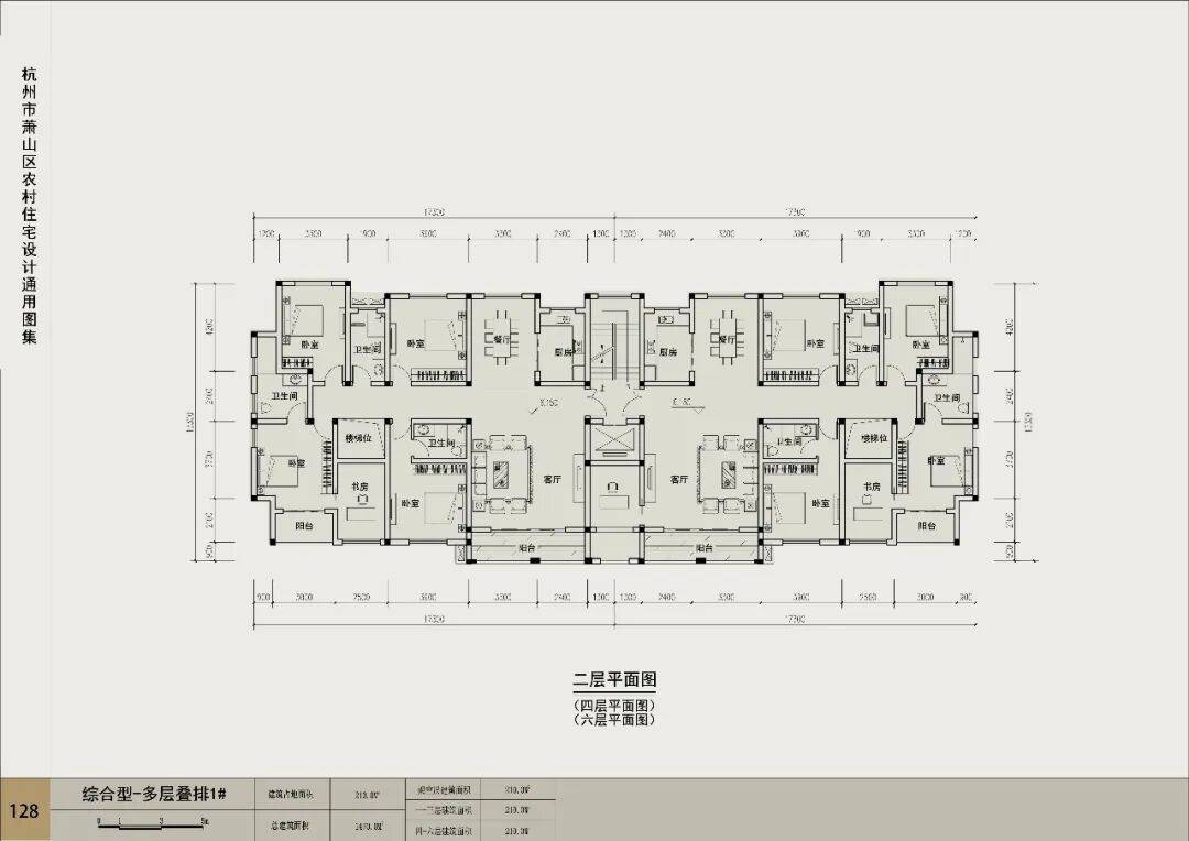
综合型4(多层叠排)


















